- 0
- 0
- 0
分享
- 合肥PLUTO BAR灯光设计
-
2021-08-18

本项目是酒吧品牌pluto在安徽合肥布局的一家新店,选址位于综合商业体的下沉广场,借助独特的场地优势,利用引入地下酒吧的动线形式,为合肥的酒吧爱好者们营造出一个绝佳的夜晚匿处。
△空间概览©EMMA
整个空间围绕呈等边金字塔状的核心吧台区域,金属铁艺围合成的中心装置配合暖色夜光在酒吧昏暗迷离的环境中更突显得具有仪式感。为了避免规则三角形体带来的严肃与单调。设计师通过黑金色调材质组织搭配出的高级空间氛围,装置顶部反光饰面亦折射出波光粼粼的夜晚。抬升地面并铺设黑白条纹拼接瓷砖的设计强化了室内中心地带的神秘效果,柔和谦逊的灯光和黑木纹理巧妙融合,在科幻感的金属围合框架下编织了一夜精致的酒客梦幻之旅。

△精致纤细的金属管栏构建起强烈的空间特色 ©EMMA

△金属三角装置吧台区与环绕周边的散座形成亲密的空间联系©EMMA

△透过玻璃核心吧台区域©EMMA

△金字塔状的核心吧台区域©EMMA


△核心吧台区域细节©EMMA
空间外立面利用长虹玻璃紧密地围合成宽阔视域,隐约显现的酒吧室内食客的影绰为外部的商业广场夜晚增添几分华丽而神秘的视觉效果。

△长虹玻璃上俏皮的概念插画增强酒吧夜晚的趣味体验 ©EMMA

△不同环境氛围下的卡座形式满足酒客们的多元需求©EMMA

△地面抬升不一的空间形态营造差异化体验©EMMA
多元空间景观的重叠组合,弧形围合将欢聚的酒客们环入霓虹声色间,顶部装置承载的装饰性采光也使得区域空间充满戏剧氛围。


△私密卡座区©EMMA

△绿植在室内搭建起独特的空间质感 ©EMMA

△卡座区立面造型设计 ©EMMA
夏梦,蕨树,环形帷幔,像一场蒸汽工业风浪席卷热带雨林之后的觥筹狂欢。


△景观和入口细部 ©EMMA

△吧台细节示意 ©三厘社

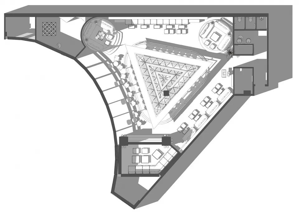
△场地平面图©三厘社

△空间立面图©三厘社
项目名称:PLUTO BAR
设计方:三厘社triostudio
公司网站:triostudio.cn
联系邮箱:lx@triostudio.cn
项目设计 & 完成年份:2020年
主创及设计团队:三厘社triostudio
项目地址:安徽合肥
建筑面积:324平方米
摄影版权:EMMA
合作方:上海东尼装饰
客户:PLUTO BAR
品牌:维光照明 立邦涂料 世标广告
©版权声明:该文章素材来源于谷德设计网gooood.cn,请联系原作者,本文由灯光帮编辑发布,如需转载,请在后台回复“转载”。 以上不是代表灯光帮观点,如有问题请联系作者,推广、招聘、投稿分享、加入灯光帮微信群、项目对接有任何疑问合作请您联系:dengguangbang_cn

-
阅读原文
* 文章为作者独立观点,不代表数艺网立场转载须知
- 本内容由数艺网主动采集收录,信息来源为 “灯光帮” 公开网络发布内容。第三方如需转载本内容,必须完整标注原作者信息及 “来源:数艺网”,严禁擅自篡改、删减或未标注来源转载。 并附上本页链接: 若您的内容不希望被数艺网收录,或认为此举侵犯了您的合法权益,敬请通过微信 ID:d-arts-cn 联系数艺网。我们将致以诚挚歉意,并第一时间为您办理下架或删除处理。




