- 0
- 0
- 0
分享
- 上海易星球,迷幻灯光下混合现实的游乐场
-
2021-10-05
协调亚洲为时刻追求尝鲜的中国95后、00后一代的年轻人,打造一个综合娱乐、休闲与刺激体验的混合现实汇集地。易星球为在上海市中心繁华地段,占地1250平米的空间中展示以数字为中心的生活方式。作为一个既多元化又灵活多变的场地,易星球提供举办包含现场电玩竞赛、讲座、编程工作坊以及各种活动的机会,邀请顾客透过线上、线下的方式参与其中,模糊了虚拟与现实的疆界。

▲迎宾柜台© 夏宇
走入易星球迎宾区,穿孔与波浪铝板不断反射来自LED墙面的光芒与色彩,引发一种数字与实体交错、超然于世的情绪。透明的可折叠LED屏幕墙环绕着主舞台,让不同区域中的顾客视线无阻,连结各个活动中的玩家与观众。地面由不同暖色调的PVC色块组合,灯光照明下区分不同区域,并做为视觉导引。


© 夏宇
天花上一系列LED灯条贯穿整个空间,舞动的彩色灯光在空间里为顾客提供指引。这些灯条在主舞台区构成一个具有冲击力的网格结构,让这个区域成为不可忽视的视觉焦点。舞台区的设置可举办各种不同活动:从表演到现场电玩竞赛赛事;从瑜伽课到编程工作坊。大型LED墙和舒适的座位区与舞台结合,让不同的社群可以在此聚会并相遇。

▲LED屏幕墙连结不同区域 © 夏宇
不仅仅限于一个“游乐场”,易星球策划了一系列线下的数字体验吸引寻求刺激的年轻群体,提供给兴趣各异的群体广受欢迎的娱乐项目。一个带着迷幻灯光特效的真人CS互动区呈现出不同的场景;带着悬挂屏幕的虚拟现实游戏站,让旁观者也能以第三人视角参与其中;还有无人机模拟器以及让追求刺激的顾客在室内飞行的体验。
▲虚拟现实游戏站© 夏宇

▲浮在空中的屏幕© 夏宇
▲体验场景 © 夏宇

▲半透明隔断 © 夏宇

▲与游戏站相连的走廊空间 © 夏宇
除了提供最前沿的设施,餐饮区还有一个“机器人酒吧”,完美演绎这个高科技游乐场的场景。一排设置在吧台上方、吸人眼球的两条线性型灯一亮,更是提升了整体未来感的氛围。
▲餐吧 ©夏宇

▲等候区© 夏宇
协调亚洲精心打造的这个多功能的娱乐中心,吸引了上海广大以科技为生活中心的社群。

▲轴测图 © 协调亚洲
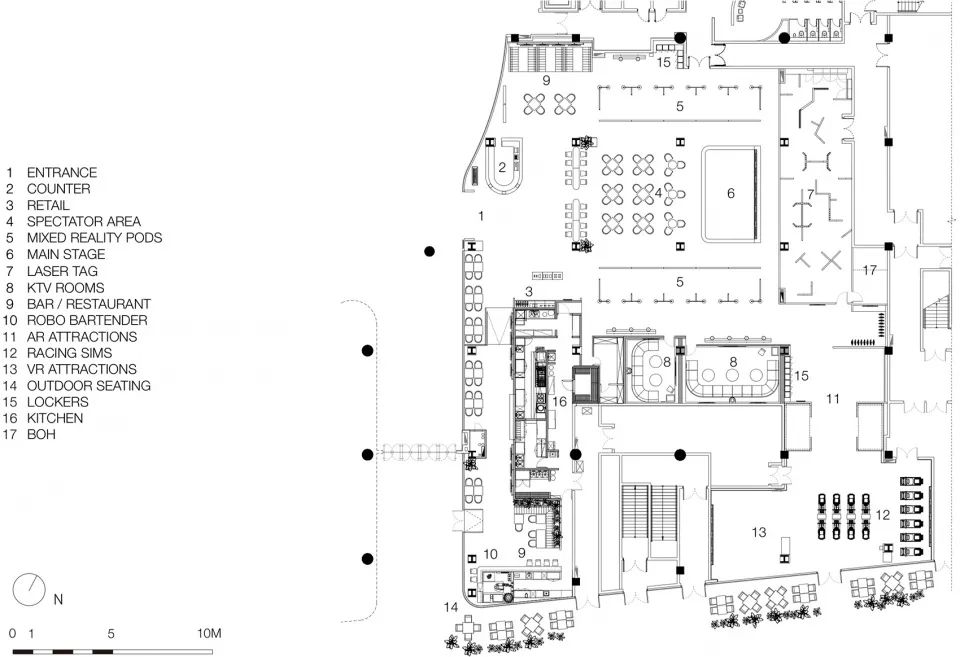
▲平面图© 协调亚洲
类型:娱乐与餐饮
地点:上海北外滩白玉兰广场一楼
任务:概念设计,深化设计,现场监理
范围:1,250 平米
完成时间:2021年
团队:迪尔曼·图蒙,桂琦,殷琦洛,虞音
客户:上海鹏隆网络科技有限公司
照片:协调亚洲,夏宇
©版权声明:该文章素材来源于谷德设计网gooood.cn,请联系原作者,本文由灯光帮编辑发布,如需转载,请在后台回复“转载”。 以上不是代表灯光帮观点,如有问题请联系作者,推广、招聘、投稿分享、加入灯光帮微信群、项目对接有任何疑问合作请您联系:dengguangbang_cn

-
阅读原文
* 文章为作者独立观点,不代表数艺网立场转载须知
- 本内容由数艺网主动采集收录,信息来源为 “灯光帮” 公开网络发布内容。第三方如需转载本内容,必须完整标注原作者信息及 “来源:数艺网”,严禁擅自篡改、删减或未标注来源转载。 并附上本页链接: 若您的内容不希望被数艺网收录,或认为此举侵犯了您的合法权益,敬请通过微信 ID:d-arts-cn 联系数艺网。我们将致以诚挚歉意,并第一时间为您办理下架或删除处理。





