- 0
- 0
- 0
分享
- 联发万科·海上明月照明设计
-
2021-10-13

▲项目位置

▲规划结构分析图
将住宅分成南北两个组团,在滨湖景观带和步行系统轴线的划分下,形成商业广场、精品生活、玩乐空间以及邻里中心四个特色主题区。

▲建筑鸟瞰
此项目为江西万科分公司继“海上传奇”之后的又一力作,是集住宅、商业、办公、教育为一体的综合与智能的全业态组合社区项目。

▲建筑效果展示
北立面主要营造明月初生的意向画面 ,即满月。当傍晚降临,行人走在广场之上,就如走于月亮之下,欣赏月亮倒映在海水之中的景色。

▲建筑北立面概念图(由建筑设计提供)

▲建筑北立面

▲建筑东立面概念图(由建筑设计提供)

▲建筑东立面

▲建筑东立面

▲灯光设计概念图

外:在外部商业环境的灯光设计中,着重处理照明与城市关系,营造精致有序并富有内涵的氛围,创造安全舒适且温馨惬意的光环境,实现景观与周边建筑的渗透融合。

内:在内部灯光环境中,赋予地面及街道顶部植入灯光照明的多种形式,体现灯光环境的艺术性,丰富照明层次,迎合商区主题, 整体亮化设计凸显功能性、艺术性和观赏性相结合,并兼顾长远,力求精品。

▲灯光亮度规划
第一亮度:售楼处入口 4000K+3000K
第二亮度:商 业 3000K+2700K
第三亮度:办 公 楼 4000K
第四亮度:景观及构筑物3000K

▲月之光梦丨景观

▲月之光境丨售楼处
强调弧形入口的标识性地位,建筑立面构建波光粼粼的灯光效果,似明月从湖面缓缓升起,慢慢演化为新月、满月,供人们在观月台处欣赏,描绘出了一幅唯美的画面,让人身临其境。
▲月之光华丨办公楼及商业

▲灯光实景拍摄(北立面)

▲灯光实景拍摄(北立面)
▲北立面灯光动画演示

▲灯光实景拍摄(东立面)

▲灯光实景拍摄

▲灯光实景拍摄(鸟瞰)

▲灯光实景拍摄(鸟瞰)

▲灯光实景拍摄(鸟瞰)

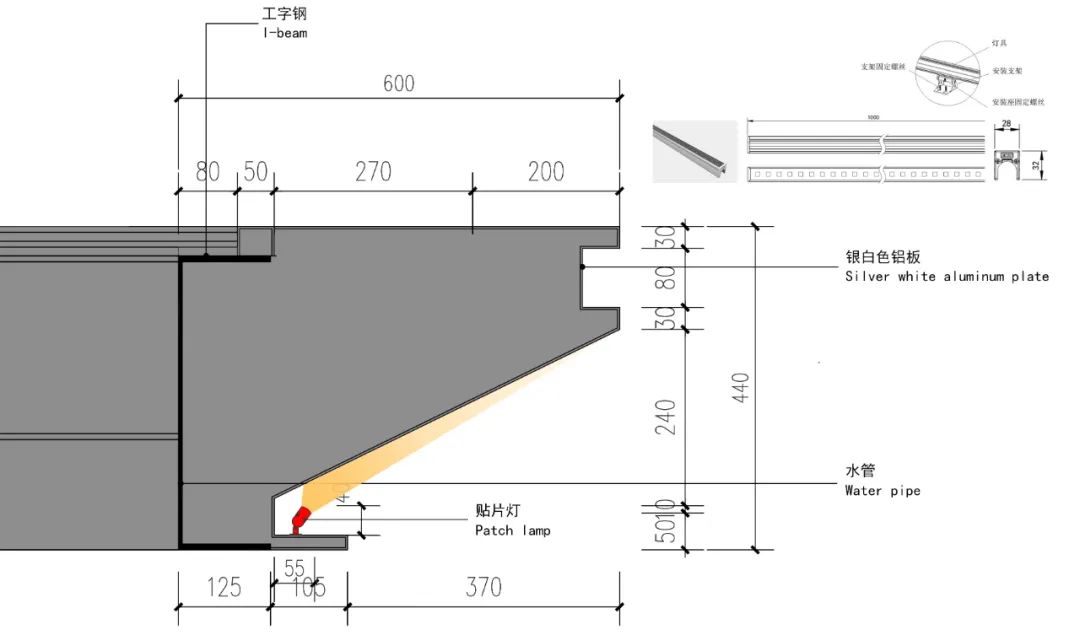
▲立面幕墙节点位置

▲灯具安装节点

▲入口拱门节点位置

▲灯具安装节点

▲办公楼立面节点位置

▲灯具安装节点

▲月环架构节点位置
▲灯具安装节点

▲轨道镜投影灯节点位置及灯具安装节点
▲轨道镜投影灯具演示
动画演示
设计总结:
1.富有特色的外表皮是吸引人的第一步,空间的连续体验是良好感受的第二步,灯光的唯美呈现是感知人们心灵的第三步;
2.华灯初上,灯光赋予建筑夜晚新的诠释,光与建筑共存,用灯光讲述故事;
3.美不存在于物体之中,而存在于物与物产生的阴翳的波纹和明暗之中。
——谷崎润一郎
照明设计团队:
设计主持 | 郑志伟
设计成员 | 马超帅、温智强、仝可、孙雪、王志超
项目信息:
项目名称 | 联发万科 • 海上明月
建筑设计 | UCGD有乘
幕墙顾问 | 厦门嘉福幕墙铝窗有限公司
景观顾问 | 元境设计顾问(深圳)有限公司
设计时间 | 2019年
项目面积 | 约26.5万㎡
项目地址 | 江西省南昌市高新区艾溪湖北路和创新二路交叉口
郑志伟 Leo
©版权声明:该文章素材来源于光影国际照明设计,请联系原作者,本文由灯光帮编辑发布,如需转载,请在后台回复“转载”。 以上不是代表灯光帮观点,如有问题请联系作者,推广、招聘、投稿分享、加入灯光帮微信群、项目对接有任何疑问合作请您联系:dengguangbang_cn

-
阅读原文
* 文章为作者独立观点,不代表数艺网立场转载须知
- 本内容由数艺网主动采集收录,信息来源为 “灯光帮” 公开网络发布内容。第三方如需转载本内容,必须完整标注原作者信息及 “来源:数艺网”,严禁擅自篡改、删减或未标注来源转载。 并附上本页链接: 若您的内容不希望被数艺网收录,或认为此举侵犯了您的合法权益,敬请通过微信 ID:d-arts-cn 联系数艺网。我们将致以诚挚歉意,并第一时间为您办理下架或删除处理。





