- 0
- 0
- 0
分享
- 同济院新作:中国重燃研发总部基地,造型源自企业 Logo
-
2023-03-25
© 同济大学建筑设计研究院
由同济大学建筑设计研究院全力打造的中国重燃研发总部基地已开工建设。方案以“为研发而设计”为出发点,力求打造集研发实验、会议展示、运动休闲等功能于一体的“无限循环、无限活力、无限未来”的共享总部。
© 同济大学建筑设计研究院
布局生成—打造临港 103 片区新地标
基地限高 50 米,如何突破传统高层的刻板印象?设计根据功能需求,把建筑分为东西两栋塔楼。塔楼错位布置,围合出独立的入口广场,获得开阔的办公视野。造型垂直互连,增强城市界面的丰富性,为 103 片区提供了一种新的建筑体量类型,成为区域内一座共享融合的标志性建筑。
© 同济大学建筑设计研究院
形体生成
© 同济大学建筑设计研究院
造型设计——企业文化的外在表达
建筑造型来源于中国重燃的企业 Logo——绿动未来图案,通过建筑形体的交织穿插,传达团结合作、和合共赢的企业精神。重型燃气轮机代表企业的核心技术,立面设计从它旋转外形中获得灵感,把科技之美融入设计之中,打造科技感和未来感的全新地标建筑。
形体概念
立面概念
© 同济大学建筑设计研究院
功能复合——打造工作+生活的一体化垂直社区
设计希望模糊工作和生活的边界,让本项目成为研发人员的“第二生活居所”。提出把电梯厅看做联系垂直空间的桥梁,每两层设置挑空空间,南北分布并且错层布局。挑空区正对电梯厅,让空间在垂直方向形成“之”字形流动,成为一个工作+生活的一体化垂直社区。
© 同济大学建筑设计研究院
垂直社区
空间剖面
观景平台——人与自然的充分接触和互动
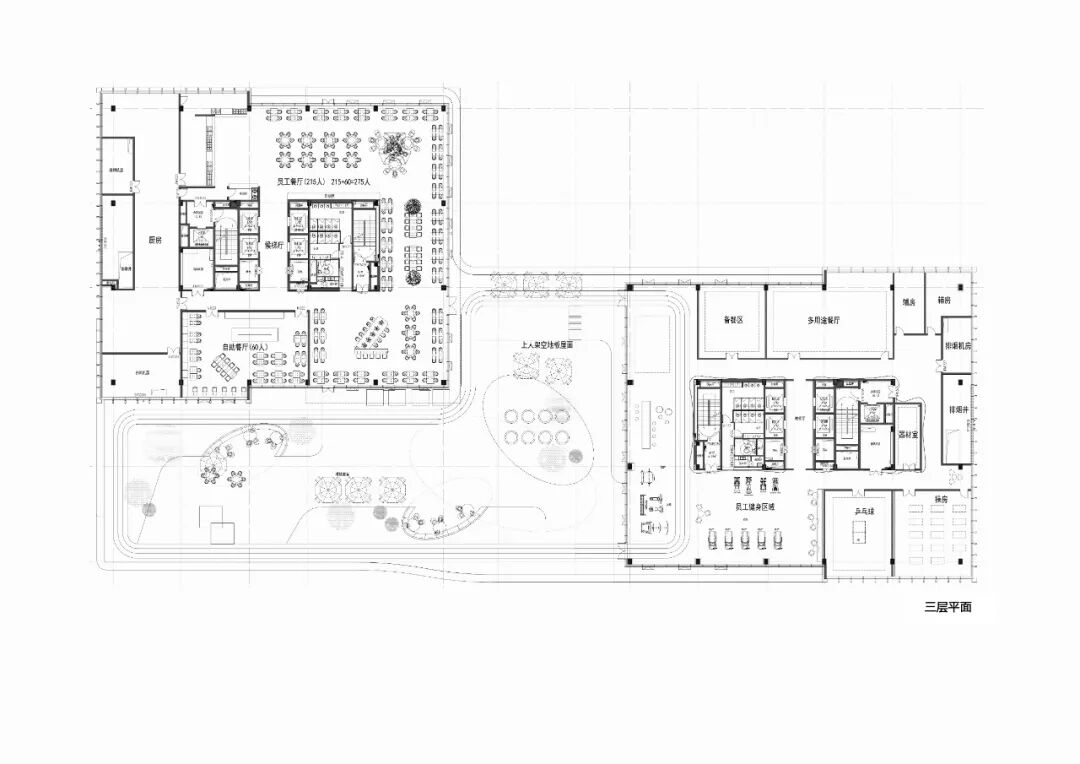
基地坐拥极佳的景观视野,设计利用屋顶和中庭植入观景平台,营造室内外无限的景观渗透。建筑三层布置食堂、书吧等公共性功能,利用一条休闲跑道串联,跑道有意延伸进室内,将是未来大楼的活力中心。
结语
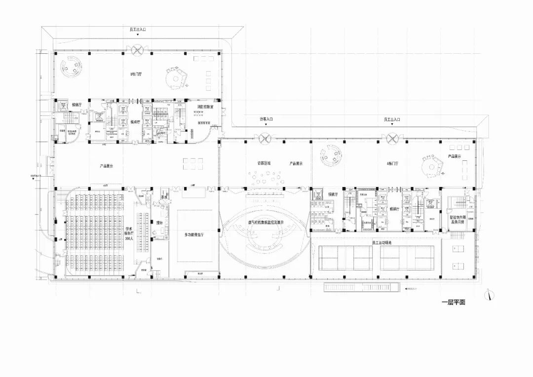
一层平面图
三层平面图
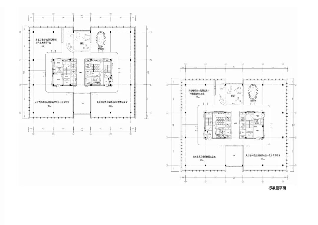
标准层平面图
剖面图
-
阅读原文
* 文章为作者独立观点,不代表数艺网立场转载须知
- 本内容由数艺网主动采集收录,信息来源为 “展馆设计 | 佳势展陈” 公开网络发布内容。第三方如需转载本内容,必须完整标注原作者信息及 “来源:数艺网”,严禁擅自篡改、删减或未标注来源转载。 并附上本页链接: 若您的内容不希望被数艺网收录,或认为此举侵犯了您的合法权益,敬请通过微信 ID:d-arts-cn 联系数艺网。我们将致以诚挚歉意,并第一时间为您办理下架或删除处理。




